铁路用热轧钢轨型号共5种,包括38kg/m(P38)、43kg/m(P43)、50kg/m(P50)、60kg/m(P60)、75kg/m(P75),简称38、43、50、60、75钢轨;60kg/m、75kg/m新轨头廓形钢轨简称60N、75N钢轨。起重机常用的铁路用热轧钢轨型号包括38、43、50、60四种钢轨,长度12.5m/根。

图1 60N钢轨(来源:网络)
抗拉强度大于等于880(1080)N/mm2;
抗拉强度大于等于980(1180)N/mm2;
抗拉强度大于等于980(1180)N/mm2;
抗拉强度大于等于1080(1280)N/mm2;
抗拉强度大于等于(1280)1080N/mm2;


图3 P43钢轨形式尺寸

图4 P50钢轨形式尺寸

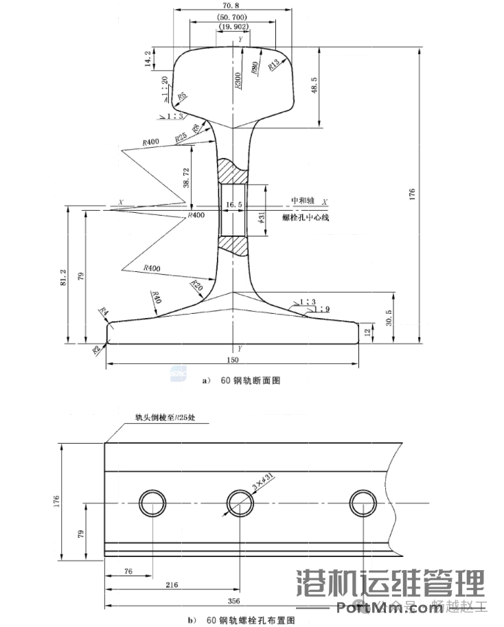
图5 P60钢轨形式尺寸

图6 P75钢轨形式尺寸
小提示:
38kg/m~75kg/m轨道踏面宽尺寸基本都是70mm,型号数字即为每米大约重量。
38轨道:38.73kg;43轨道:44.56kg;50轨道:51.46kg;60轨道:60.76kg;75轨道:74.6kg;
钢轨横断面分为轨头、轨腰、轨底,见图7。每根钢轨轨腰上,每4m间隔有凸起的标识,包含制造厂、型号、牌号、速度等级(大于等于200km/h为G)、制造年(后两位)月,另外还有13为数字的热压印标记。

图7 钢轨横断面分区图

表1 QU钢轨理论重量及计算数据表
(来源:YB/T 5055-2014截图)

表2 38kg/m~75kg/m钢轨计算数据表
(来源:GB/T 2585-2021截图)

表3 38kg/m~75kg/m钢轨理论重量及分配
(来源:GB/T 2585-2021截图)
综上比较,50kg/m与QU70,60kg/m与QU80横截面积及每米重量近似,P50、P60对水平轴线的惯性力矩相应大1倍左右。另外,38kg/m~75kg/m型钢轨踏面宽度基本都是70mm,与QU70踏面宽度差不多。
以上为个人的一些薄识总结,仅供参考
描述、数据如有误之处,敬请指正。