









![]() |
![]() |
![]() |
![]() |
![]() |
![]() |
![]() |










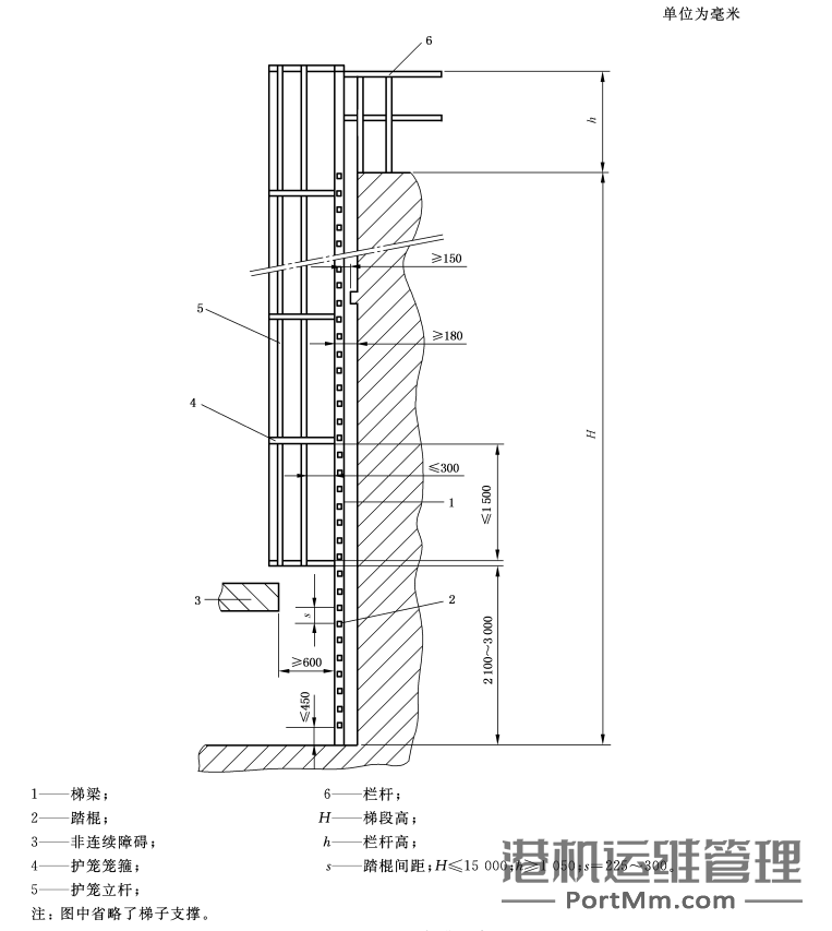
依据法规/标准:
《固定式钢梯及平台安全要求 第1部分:钢直梯》(GB 4053.1-2009)
《固定式钢梯及平台安全要求 第2部分:钢斜梯》(GB 4053.2-2009)
《固定式钢梯及平台安全要求 第3部分:工业防护栏杆及钢平台》(GB 4053.3-2009)










![]() |
![]() |
![]() |
![]() |
![]() |
![]() |
![]() |










依据法规/标准:
《固定式钢梯及平台安全要求 第1部分:钢直梯》(GB 4053.1-2009)
《固定式钢梯及平台安全要求 第2部分:钢斜梯》(GB 4053.2-2009)
《固定式钢梯及平台安全要求 第3部分:工业防护栏杆及钢平台》(GB 4053.3-2009)